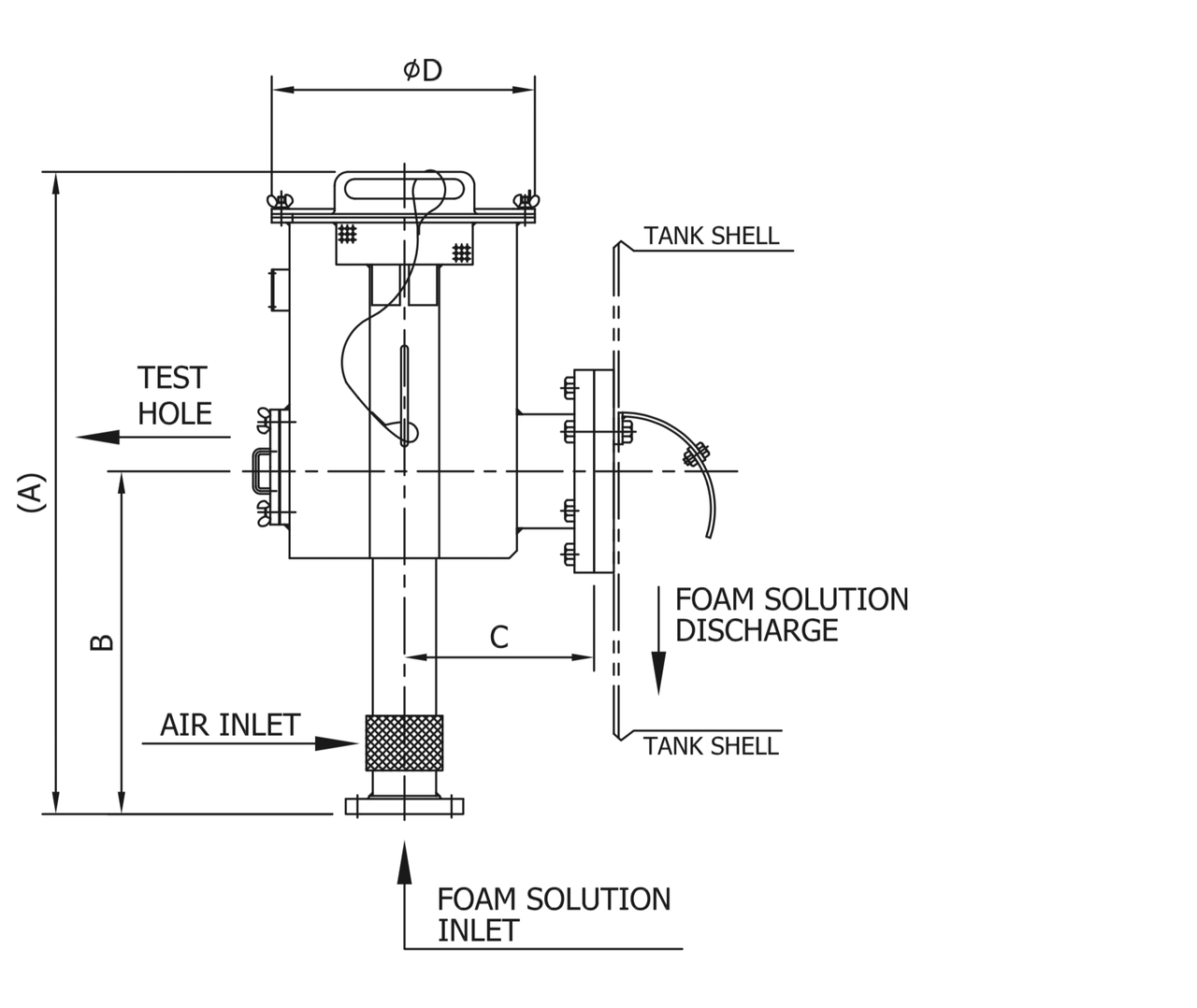
FOAM CHAMBERS
It is a fixed type foam fire-extinguishing system that is installed on the upper side of combustible oil storage tank and discharges the foam to the surface of fluid stored inside the tank in case of fire to separate oxygen from air. When the aqueous solution mixed with the foam agent is released through the orifice inside the foam chamber, the barrier film for preventing the backflow of oil mist ruptures and the low-expansion foam is generated by mixing the aqueous solution and the inhaled air.
The foam is not scattered by the deflector installed on the inner wall of the tank, but flows along the inner wall,
and flows on the surface of the oil. Vapor seal for blocking the inside of the foam chamber includes seal glass and a rupture disc. It prevents oil mist and gas generated from stored oil etc. from entering the piping connected to the foam chamber to protect life and damage of equipment, which ruptures and releases foam.
A deflector includes type II used for a cone roof tank and floating roof tank. Inlet pressure should be at least 3.5 barg or higher when installing a foam chamber.
CIRCULAR SHAPE
- Inlet flange : ANSI #150. RF or FF type
- Working pressure : 2.5 ~ 4.5 Bar
- Expansion ratio : Aqueous forming foam ~ more than 5 times
- Paint : Red or yellow painting
- Materials : Carbon steel or Stainless steel
- Vapor seal (Rupture pressure) : 0.7 ~ 1.7 Bar
- Flow rate : Specification is available on customer's requirement
| Flange | ANSI #150. F.F or R.F | |||||
| Working Pressure | 2.5 ~ 4.5 Barg | |||||
| Expansion Ratio | Aqueous forming foam - more than 5 times | |||||
| Painting | Yellow or Red painting | |||||
| Material | Stainless steel or Carbon steel | |||||
| Vapor Seal (Rupture Pressure) | 0.7 ~ 1.7 Barg | |||||
| Feature | Test hole is installed | |||||
| Discharge Rate | Available specification on customer's request | |||||
| Model | Size | Flow Rate | Dimension (milimeter) | Remarks | ||||
Inlet | Outlet | (LPM @0.35MPa) | A | B | C | D | ||
SLC-73-16 | 2” x | 2 1/2” | 200 | 610 | 355 | 180 | 8” | |
3” | 362 | |||||||
SLC-73-25 | 2 1/2” x | 3” | 300 / 400 | 660 | 362 | 180 | 8” | |
4” | 375 | |||||||
SLC-73-34 | 3” x | 4” | 500 / 750 | 810 | 485 | 230 | 10” | |
6” | 510 | |||||||
SLC-73-45 | 4” x | 6” | 1000/ 1250/ 1500 | 930 | 540 | 255 | 12” | |
8” | 565 | |||||||
SLC-73-56 | 6” x | 8” | 2000 / 2500 | 1060 | 620 | 305 | 16” | |
10” | 645 | |||||||
SQUARE SHAPE
(Patented Product - No. 0396584 Test Hole installed)
It is a test hole attachment type to facilitate foam release test. It is attached to the discharge port, so it is safer from oil mist in case of fire. It is also convenient to use the external test hole cover for foam release test.
- Inlet flange : ANSI #150. RF or FF type
- Working pressure : 2.5 ~ 4.5 Bar
- Expansion ratio : Aqueous forming foam ~ more than 5 times
- Paint : Red or yellow painting
- Materials : Carbon steel or Stainless steel
- Vapor seal (Rupture pressure) : 0.7 ~ 1.7 Bar
- Test hole installed
- Flow rate : Specification is available on customer's requirement
Features
- It is possible to check whether seal glass is damaged or not.
- It is easy to replace seal glass.
- It is suitable to prevent corrosion due to perfect internal coating.
- There is a test hole that makes it easy to conduct foam release test.
| Flange | ANSI #150. F.F or R.F | |||||
| Working Pressure | 2.5 ~ 4.5 Barg | |||||
| Expansion Ratio | Aqueous forming foam - more than 5 times | |||||
| Painting | Yellow or Red painting | |||||
| Material | Stainless steel or Carbon steel | |||||
| Vapor Seal (Rupture Pressure) | 0.7 ~ 1.7 Barg | |||||
| Feature | Test hole is installed | |||||
| Discharge Rate | Available specification on customer's request | |||||
Model | Size | Flow Rate | Dimension (milimeter) | Remarks | ||||
Inlet | Outlet | (LPM @0.35MPa) | A | B | C | D | ||
SLC-73S-16 | 2” x | 2 1/2” | 100 | 740 | 385 | 165 | 250 | |
3” | 200 | |||||||
SLC-73S-25 | 2 1/2” x | 3” | 300 / 400 | 740 | 385 | 178 | 280 | |
4” | ||||||||
SLC-73S-34 | 3” x | 4” | 500 / 750 | 870 | 495 | 229 | 330 | |
6” | ||||||||
SLC-73S-45 | 4” x | 6” | 1000/ 1250/ 1500 | 995 | 530 | 254 | 380 | |
8” | ||||||||
SLC-73S-56 | 6” x | 8” | 2000 / 2500 | 1175 | 645 | 305 | 430 | |
AIR FOAM CHAMBER FLOW CHART EVERY MODEL AND INSTALLATION LAYOUT
AIR FOAM CHAMBER ACCESSORIES
DEFLECTOR
It shall be installed in such a way that the expansion foam made in the foam chamber during the fire is scattered so that the flame can reach the oil surface which is a combustible material without evaporation.
Foam attached to the inner wall of the tank connected to the foam chamber vent hole is not scattered but flows along the inner wall of
tank so that the contact between the combustible material and the air is blocked, allowing cooling extinguishing to be rapidly performed.
It includes type II and special type, and is made of carbon steel or stainless steel.
VAPOR SEAL
It is installed inside the foam chamber in order to prevent the leakage of harmful substances such as oil mist generated from the combustible substance stored in the tank and to prevent damage of the fire extinguishing equipment due to explosion in case of fire. Seal glass made of glass is mainly used, but rupture disc may be used depending on the type of stored substances or when the oil mist pressure is high.
FOAM TANKS
FOAM TANK (BLADDER TYPE)
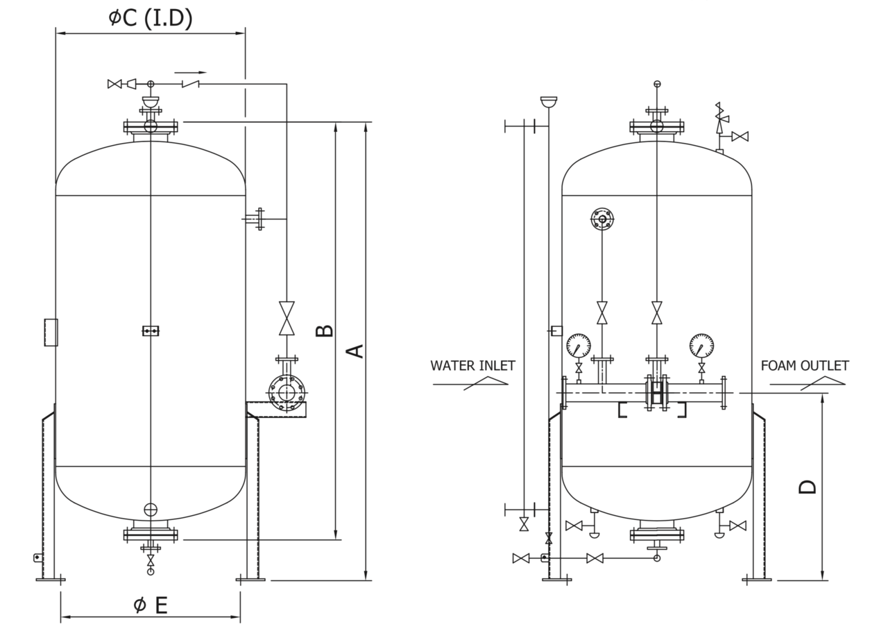
It is a tank for storing foam liquid installed with a pressure proportioner or a diaphragm pressure proportioner. A bladder bag is installed inside the tank, so foam liquid is stored inside the bag. The stored foam liquid is pushed by the pressure in the water supply line to be discharged and mixed with fire water. A tank is made of carbon steel. The inner wall is not in contact with the foam liquid but is in contact with water, so it is coated with anti-corrosion coating to prevent corrosion. The built-in bladder bag is made of a material that is not hardened or aged by the foam liquid and is not damaged by pressure, so that the lifetime is longer and more stable.
HORIZONTAL SHAPE TANK
HORIZONTAL SHAPE TANK
VERTICAL SHAPE TANK
VERTICAL SHAPE TANK
Horizontal Shape
| Model | SL-HT (Horizontal) SL-VT (Vertical) | |||||||
Type | Pressure proportioning | |||||||
Masterial | Tank : Carbon steel / Bladder bag : Hypalon over polyester | |||||||
Working pressure | 7 ~ 12 Bar | |||||||
Design pressure | 14 Bar | |||||||
Hydro test pressure | 21 Bar | |||||||
Safety valve setting pressure | 14 Bar | |||||||
Connection flange | ANSI #150 | |||||||
Surface | Epoxy urethane RED or YELLOW | |||||||
Internal treatment | Epoxy coating BLACK or GRAY | |||||||
| Model | Capacity | Dimension (mm) | Remarks | ||||||
(Gallon) | A | B | C | D | E | F | G | ||
SL-HT-100 | 100 | 1,816 | 1,036 | 590 | 200 ~ 1500 | 611 | 820 | 340 | |
SL-HT-200 | 200 | 2,227 | 1,189 | 790 | 714 | 1,024 | 475 | ||
SL-HT-300 | 300 | 2,260 | 1,350 | 915 | 777 | 1,024 | 630 | ||
SL-HT-400 | 400 | 2,380 | 1,497 | 1,045 | 845 | 1,024 | 800 | ||
SL-HT-500 | 500 | 2,796 | 1,497 | 1,045 | 845 | 1,300 | 800 | ||
SL-HT-600 | 600 | 2,962 | 1,497 | 1,045 | 845 | 1,640 | 800 | ||
SL-HT-700 | 700 | 3,086 | 1,644 | 1,900 | 917 | 1,350 | 850 | ||
SL-HT-800 | 800 | 3,336 | 1,644 | 1,900 | 917 | 1,640 | 850 | ||
SL-HT-900 | 900 | 3,740 | 1,644 | 1,900 | 917 | 1,640 | 850 | ||
SL-HT-1000 | 1000 | 4,040 | 1,644 | 1,900 | 917 | 1,700 | 850 | ||
SL-HT-1100 | 1100 | 3,126 | 1,950 | 1,495 | 1,072 | 1,400 | 1,100 | ||
SL-HT-1200 | 1200 | 3,366 | 1,950 | 1,495 | 1,072 | 1,570 | 1,100 | ||
SL-HT-3700 | 3,700 | 14,000 | 2,391 | 1,956 | 1,298 | 2,000 | 1,400 | ||
- Just for reference. It can be changed to customer's requirement or quality improvemet
Vertical Shape
| Model | SL-HT (Horizontal) SL-VT (Vertical) | |||||||
Type | Pressure proportioning | |||||||
Masterial | Tank : Carbon steel / Bladder bag : Hypalon over polyester | |||||||
Working pressure | 7 ~ 12 Bar | |||||||
Design pressure | 14 Bar | |||||||
Hydro test pressure | 21 Bar | |||||||
Safety valve setting pressure | 14 Bar | |||||||
Connection flange | ANSI #150 | |||||||
Surface | Epoxy urethane RED or YELLOW | |||||||
Internal treatment | Epoxy coating BLACK or GRAY | |||||||
| Model | Capacity | Dimension (mm) | Remarks | ||||
(Gallon) | A | B | C | D | E | ||
SL-VT-100 | 100 | 2,001 | 1,727 | 590 | 200 ~ 1500 | 605 | |
SL-VT-200 | 200 | 2,331 | 2,081 | 790 | 760 | ||
SL-VT-300 | 300 | 2,568 | 2,244 | 915 | 880 | ||
SL-VT-400 | 400 | 2,531 | 2,202 | 1,045 | 1,020 | ||
SL-VT-500 | 500 | 3,137 | 2,796 | 1,045 | 1,310 | ||
SL-VT-600 | 600 | 2,930 | 2,603 | 1,190 | 1,150 | ||
SL-VT-700 | 700 | 3,400 | 3,073 | 1,190 | 1,150 | ||
SL-VT-800 | 800 | 2,722 | 2,322 | 1,495 | 1,476 | ||
SL-VT-1000 | 1,000 | 3,785 | 3,172 | 2,505 | 1,495 | ||
- Just for reference. It can be changed to customer's requirement or quality improvemet
NON-BLADDER TANK
It is a tank for storing foam liquid applied to a mixer that has a self-inhaling function such as a pressure side proportioner and a line proportioner or a pump proportioner.
As the foam liquid comes into direct contact with the tank surface, it is mainly made of stainless steel to prevent corrosion by the foam liquid. In order to prevent the evaporation or deterioration of the foam liquid at the normal time and to smoothly inhale the air, the air vent suitable for the maximum discharging amount is installed.
| Model | SL-HTN (Horizontal) SL-VTN (Vertical) | |||||||
Type | Horinzontal / Vertical Atomospheric Proportioning | |||||||
Masterial | Stainless steel | |||||||
Working pressure | ATM | |||||||
Design pressure | ATM | |||||||
Hydro test pressure | Full Water | |||||||
Connection flange | ANSI #150 | |||||||
Surface | Stainless steel itself | |||||||
Internal treatment | Epoxy coating BLACK or GRAY | |||||||
| Capacity | Dimension (mm) | Remarks | ||
(Gallon) | A | B | C | |
600 | 3,100 | 770 | 960 | |
800 | 3,150 | 880 | 1,070 | |
1,000 | 3,450 | 920 | 1,110 | |
2,000 | 3,550 | 1,260 | 1,500 | |
3,000 | 3,700 | 1,520 | 1,770 | |
4,000 | 3,750 | 1,720 | 1,970 | |
5,000 | 3,800 | 1,910 | 2,160 | |
6,000 | 4,200 | 1,910 | 2,160 | |
8,000 | 4,600 | 2,080 | 2,340 | |
10,000 | 4,850 | 2,200 | 2,440 | |
12,000 | 4,950 | 2,370 | 2,770 | |
14,000 | 5,000 | 2,550 | 2,950 | |
16,000 | 5,200 | 2,630 | 3,030 | |
18,000 | 5,500 | 2,680 | 3,080 | |
